Neubau Bürogebäude mit Werkhalle

Bunsenstraße, Ingolstadt

Bauherr: INCOS GmbH, Ingolstadt
Leistungen: Leistungsphasen der HOAI 1-5

Ausführung im Architekturbüro F. X. Huber
Mitarbeit: Jochen Schwind, Christian Söldner

Hauptnutzfläche 1.660m²
Bruttogrundfläche 2.120m²
Bruttorauminhalt 7.550m³
Baubeginn Juli 2008
Fertigstellung September 2009

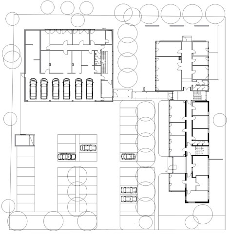
Bei der neuen Firmenzentrale der Firma INCOS GmbH in Ingolstadt sollten zusätzliche Verwaltungsräume und eine Werkhalle (für Fuhrpark und Materialprüfungen) errichtet werden. Die neuen Baukörper wurden L-förmig entlang der Grundstücksgrenzen angeordnet und durch eine Glasüberdachung außenräumlich miteinander verbunden. Dazwischen entstand eine abgesenkte Terrassenfläche. Während die Werkhalle als Stahlbetonbau mit Lochfassade und Wärmedämmverbundsystem errichtet wurde, erhielt der Verwaltungsbau in Stahlbetonskelettbauweise eine Vorhangfassade mit einer Pfosten-Riegel-Konstruktion und transparenten bzw. farbigen Glaspaneelen. Die geschlossenen Giebelflächen wurden mit anthrazitfarbenen Faserzementplatten verkleidet.

zurück
© Architekturbüro Klaus Huber | Impressum | Datenschutz